Toate cele bune si o zi de primavara frumoasa
Nava de pasageri Tudor Vladimirescu
				
						#81
						
								
							  
								
						
					
				
				Postat 06 April 2013 - 05:09 PM
Toate cele bune si o zi de primavara frumoasa
				
						#83
						
								
							  
								
						
					
				
				Postat 07 April 2013 - 05:44 PM
marinaru29, la 07 April 2013 - 11:11 AM, a spus: 
Multumesc marinaru29 doar ce mi-am facut incalzirea urmeaza niturile pe coaste ceva mai putine cei drept .
Pentru edificarea lucrarii astazi am dat o mana de primer pentru a vedea defecte ,efecte si altele .
Toate cele bune si multa bafta .
				
						#88
						
								
							  
								
						
					
				
				Postat 13 April 2013 - 10:10 PM
				
						#89
						
								
							  
								
						
					
				
				Postat 13 April 2013 - 10:36 PM
ACHRISTIAN, la 13 April 2013 - 10:10 PM, a spus: 
Salutare si multumesc de aprecieri , acum ca am dat startul la sezonul de nituire nu este nici o problema dar fiecare lucreaza la propriu model dupa cum doreste . In cazul meu aceste nituri se vad in poze si pentru a lucra un model cat mai aproape de realitate aceasta reprezinta o necesitate . Intradevar metoda aleasa de mine este cu un volum de munca mare dar nu am avut de ales din multele variante de lucru gasite . In timpul lucrului la nituire si vazind rezultatul muncii deja mi-au venit idei noi pentru a inbunatati aceasta metoda , dar cred ca le voi aplica la un viitor proect si pana atunci mai am timp de reflectie .
Toate cele bune si multa ,multa bafta
Aceasta postare a fost editata de dj-bobo: 13 April 2013 - 10:38 PM
				
						#90
						
								
							  
								
						
					
				
				Postat 22 May 2013 - 09:39 PM
Cum am reusit sau nu nituirea modelului ramane sa constatati singuri , dupa mine ar fi loc si de mai bine .
Toate cele bune si o seara placuta va doresc in continuare .
Aceasta postare a fost editata de dj-bobo: 22 May 2013 - 09:40 PM
				
						#91
						
								
							  
								
						
					
				
				Postat 25 May 2013 - 10:33 PM
Pe puntea acum instalata voi desena conturul peretilor suprastructuri v-a fi decupata puntea la casa zbaturilor si voi trasa locul hublourilor , despre confectionarea acestora este o intreaga poveste , va urma .
Toate cele bune si o seara frumoasa in continuare .
Aceasta postare a fost editata de dj-bobo: 25 May 2013 - 10:35 PM
				
						#92
						
								
							  
								
						
					
				
				Postat 26 May 2013 - 10:44 PM
A 3-a metoda am gasitoaici nu am incercato si ramane ca varianta de rezerva .
Cam asta ar fi pentru astazi toate cele bune si o seara frumoaa in continuare.
				
						#93
						
								
							  
								
						
					
				
				Postat 27 May 2013 - 08:20 AM
				
						#94
						
								
							  
								
						
					
				
				Postat 27 May 2013 - 03:15 PM
				
						#96
						
								
							  
								
						
					
				
				Postat 02 June 2013 - 09:28 PM
Din imaginea din sala masinii se pot observa modul cum sunt nituite tablele bordajului de coaste ,iar linga hublou se vad ungatuarele pentru lagarul de sprijin de la zbatul din Tb.
Acum fiind lamurit cum sunt asezate ramfosarile pot incepe o noua etapa de constructie .
Toate cele bune si o seara frumoasa va doresc .
PS. In sala masini dupa cum observati caostele sunt mai dese pentru a prelua gerutatea suplimentara din acest loc .
Aceasta postare a fost editata de dj-bobo: 02 June 2013 - 09:31 PM
				
						#98
						
								
							  
								
						
					
				
				Postat 04 June 2013 - 09:16 AM
dj-bobo, la 03 June 2013 - 10:50 PM, a spus: 
Toate cele bune si o noapte frumoasa in continuare .
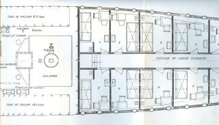
Salut! nava ta v-a avea si reprezentare interioara in detaliu?daca DA,
				
						#99
						
								
							  
								
						
					
				
				Postat 04 June 2013 - 09:33 PM
O seara buna la toata lumea .
				
						#100
						
								
							  
								
						
					
				
				Postat 05 June 2013 - 10:23 PM
Toate cele bune si o seara frumoasa va doresc .
Aceasta postare a fost editata de dj-bobo: 05 June 2013 - 10:30 PM


 Ajutor
			
		
 Sus




